Location: 38 Phan Bội Châu, Hoàn Kiếm, Hà Nội, Việt Nam
Project Year: 2017
Area: 85.0 m2
Photographs: Tuan Dao Studio
Designed by: Le House

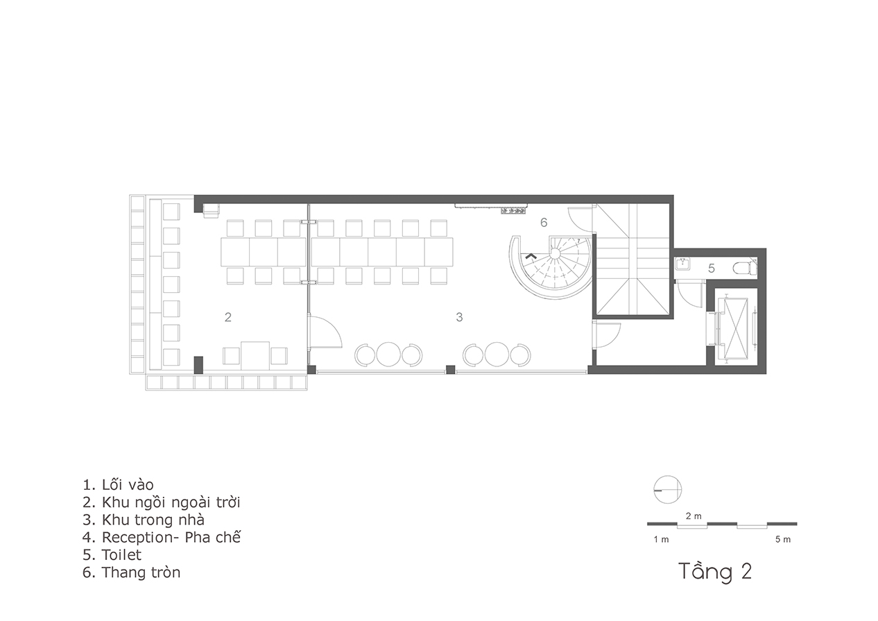
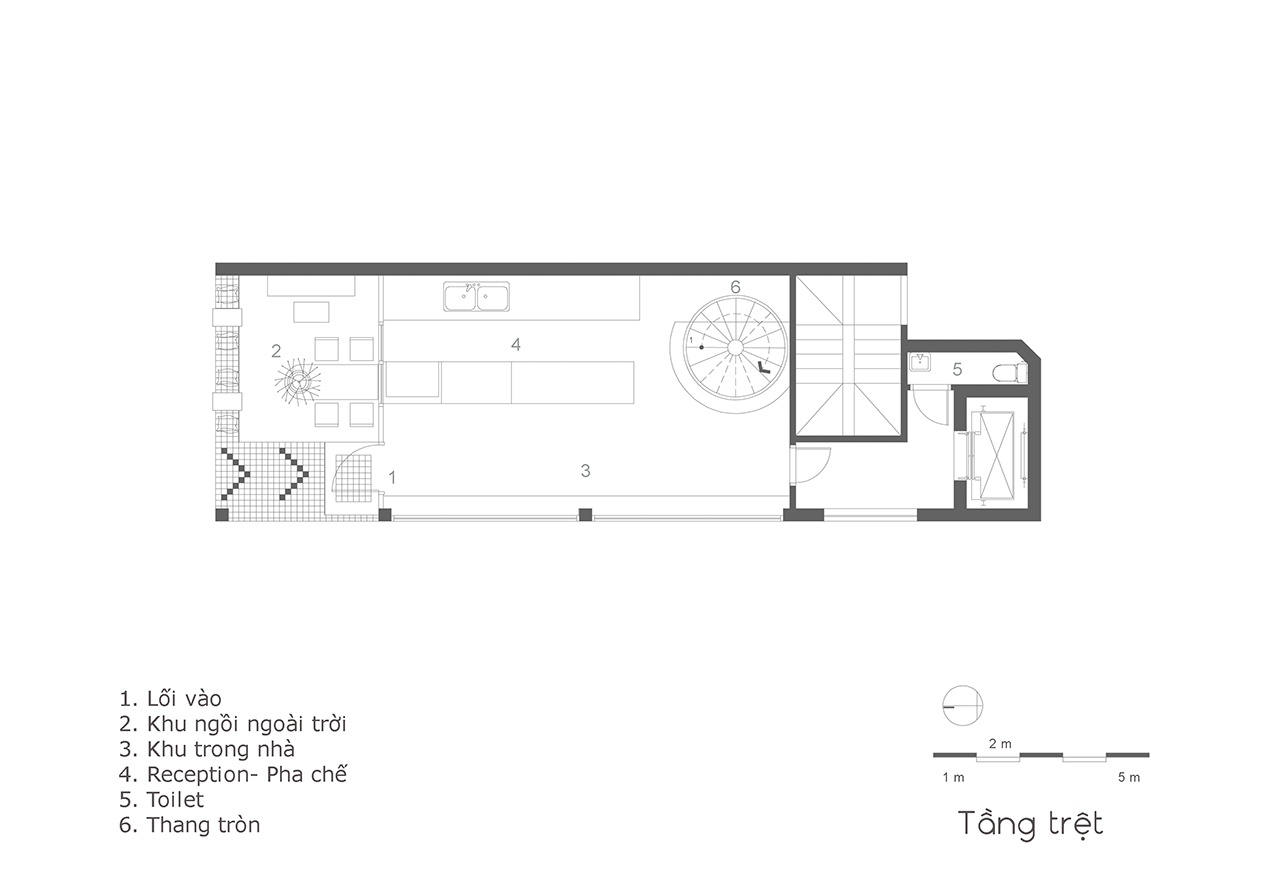
Cửa hàng thứ 2 của JOTO đã có mặt tại 38 Phan Bội Châu, Hoàn Kiếm. Một không gian xanh tươi ấm cúng với một ban công tràn đấy ánh sáng trong trời nắng, cung cấp các đồ uống Organic và bánh desert truyền thống Pháp.

