Location: 12 Hàng Điếu, quận Hoàn Kiếm, Hà Nội, Việt Nam
Project Year: 2016
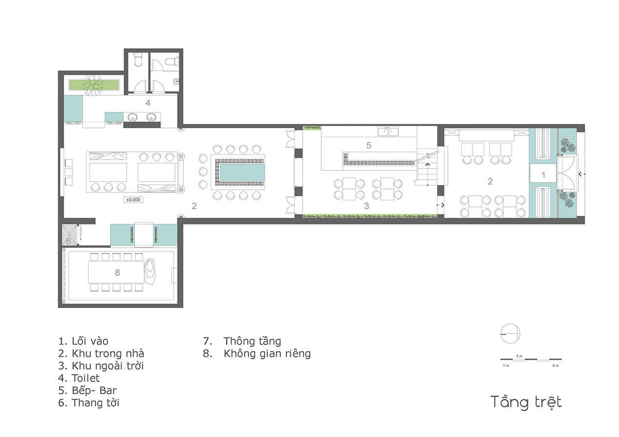
Area: 440.0 m2
Photographs: Tuan Dao Studio
Designed by: Le House

Nhiều người thắc mắc, tại sao Nhà hàng lại được đặt tên là Đông Phú 1932 giữa muôn nghìn cái tên mĩ miều khác? Đông Phú là tên của chính ngôi nhà số 12 Hàng Điếu - nơi chúng tôi đang xây dựng nhà hàng hiện nay. Một ngôi nhà cổ với kiến trúc Pháp tuyệt đẹp được xây dựng từ năm 1932. Trải qua bao nhiêu thăng trầm lịch sử, căn nhà ấy là biểu tượng của phố cổ Hà Nội. Tới Hà Nội, chắc chắn bất cứ ai cũng đến thăm phố cổ. Mà tới phố cổ, hẳn nhiên bạn sẽ muốn thưởng thức đặc sản Việt Nam. Còn gì tuyệt vời hơn khi chính trong không gian này, chúng tôi chăm chút cho từng món ăn Việt, mang tới cho thực khách bữa cơm Việt ngon lành, tinh tế.

