 
            
            
                
                
            
                    Location: 34 Hàng Bài, Quận Hoàn Kiếm, Hà Nội, Việt Nam
Project Year: 2016
Area: 750.0 m2
Photographs: Hyroyuki Oki
Designed by: Le House

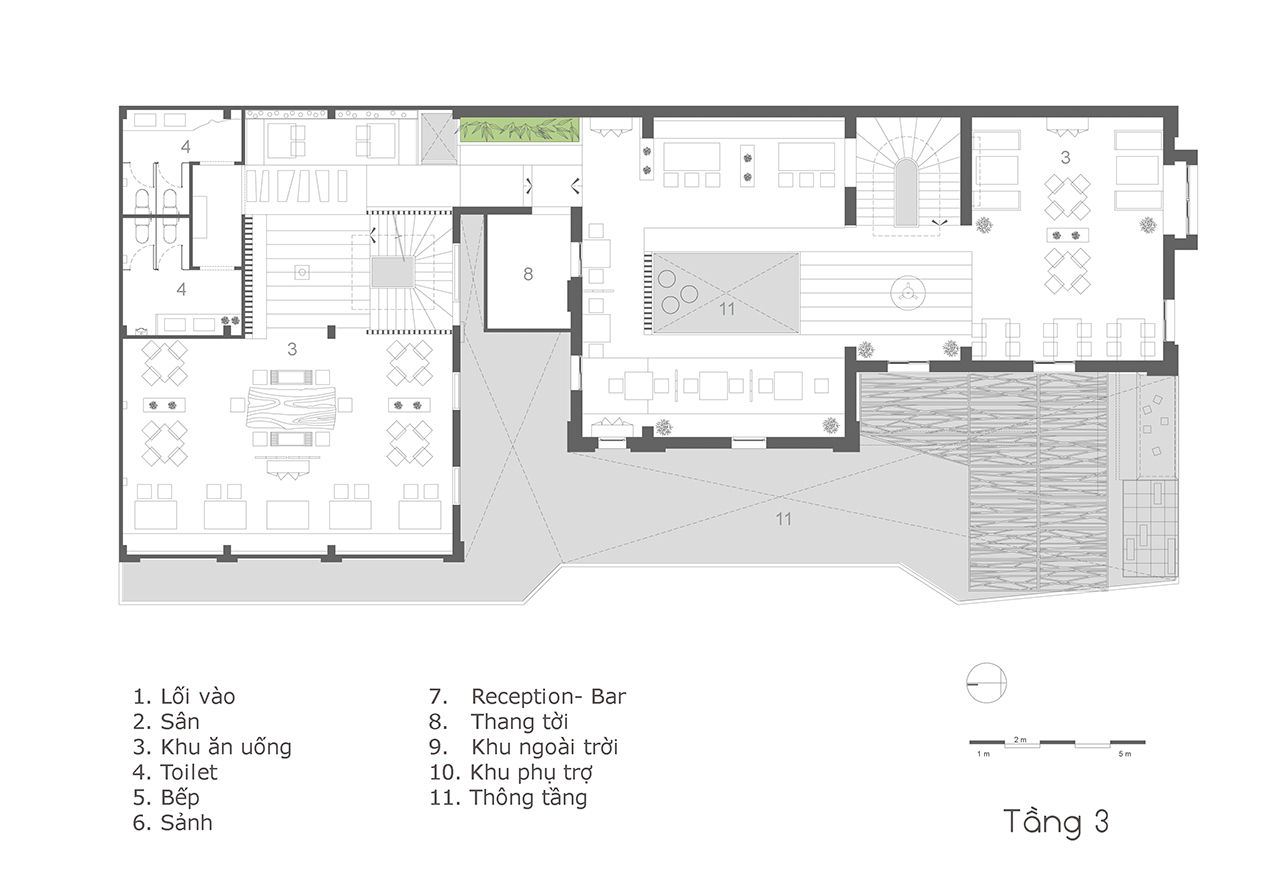
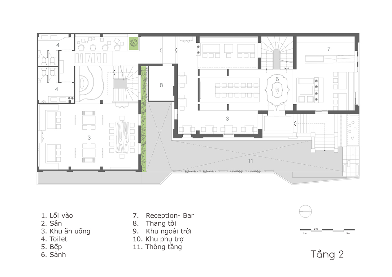
Giữa phố thị sầm uất, Ưu Đàm Chay nhẹ nhàng khai nở không khoa trương ồn ã, như một ốc đảo xanh tươi mát lành đón người bộ hành trên sa mạc. Bước một bước qua bậc thềm, đi qua bức phù điêu Phật Muôn Diện, hoà mình vào không gian của Ưu Đàm để trút bỏ mọi phiền não ưu lo bên ngoài cánh cổng. Không gian 3 tầng tượng trưng cho 3 khoảng thời gian cho nhà Phật: Hiện Tại- Quá Khứ và Vị Lai( tương lai). Mọi không gian sẽ là một sự khám phá thú vị, mà chỉ có mội người chúng ta tự cảm nhận được điều mà chúng tôi gửi gấm cả lòng tin yêu trong mỗi góc nội thất của công trình, từng tay chọn từng cái khăn, chiếc đũa, chiếc bát, cả từng loại rau loại củ. Khó mà có thể từ chối trong một không gian làm say đắm lòng người giữa chốn ồn ào vội vả của cuộc sống để trở về với bản ngã thiền định của con người.
             
Ưu Đàm phiên âm từ Udumbara trong tiếng Phạn, có nghĩa là “loài hoa linh thiêng mang điềm lành từ trời”. Theo Kinh Phật, hoa Ưu Đàm ba ngàn năm mới có một lần chỉ khi một vị Phật giáng thế, hiếm hoi vô cùng. Hàng ngàn năm hấp thụ tinh hoa trời đất, Ưu Đàm khai nở một cách giản dị, đơn sơ nhưng tinh khôi và thuần khiết.. Nơi nào có Ưu Đàm nở, nơi đó được ân hưởng phúc lành. Từ câu chuyện ấy, Ưu Đàm Chay ra đời với mong muốn đem đến một điềm lành cho thực khách. Bằng một không gian thưởng thức ẩm thực chay ấm cúng và thanh tịnh, những món ăn tinh tế, đầy đủ dinh dưỡng và tốt cho sức khoẻ, Ưu Đàm Chay hoan hỷ được chia sẻ những giây phút yên bình, thư thái của thực khách cùng gia đình và bạn bè, hướng đến một phong cách sống lành mạnh, an nhiên.Mỗi món ăn, thức uống Ưu Đàm Chay mời thực khách là sự tinh tuý của mẹ Thiên nhiên và tâm thành của đầu bếp. Mỗi thực khách ghé nhà hàng sẽ được quý trọng và nâng niu như hoa Ưu Đàm trong lòng Phật Tử.


