Location: 23 Nguyễn Đình Chiểu, Phường Nguyễn Du, Quận Hai Bà Trưng, Hà Nội, Việt Nam
Project Year: 2014
Area: 1800.0 m2
Photographs: Viet Uy
Designed by: Le House

Nhà hàng Sứ Bia – một kiến trúc độc đáo mang thương hiệu Hoa Sứ
Nhiều nhà hàng với những kiến trúc độc đáo và sang trọng ngày càng xuất hiện đã đem đến cho thực khách những ấn tượng khó quên khi lần đầu đặt chân đến. Lấy cảm hứng từ những cây Hoa Sứ trắng tinh khôi có hương thơm thoang thoảng đung đưa theo gió, một kiến trúc nhà hàng độc đáo mang tên Sứ Bia đã mọc lên giữa lòng Hà Thành. Ấn tượng đầu tiên mà công trình mang đến không chỉ bởi vẻ ngoài độc đáo với sự bố trí những cây Hoa Sứ tinh tế ở ngay mặt tiền mà còn ở chữ “Sứ” trong từ “Sứ Bia” được lấy ra từ cái tên Hoa Sứ của nó như là một lối chơi chữ “cùng âm khác nghĩa” đầy táo bạo. Điều này tạo nên một tò mò tại sao là Sứ Bia chứ không phải Xứ Bia? Đấy là một nét độc lạ chỉ có tại nơi đây! Ấn tượng kế đến thu hút mọi ánh nhìn của thực khách là lối vào chính được đặt ngay giữa sảnh ra vào đầy ấn tượng với cấu trúc hình thang cân cao và cuốn hút như một chiếc cổng rộng mở đón chào quý khách đến với thiên đường Sứ Bia tươi mát. Có lẽ vì vậy mà nhiều thực khách đã tò mò và tìm đến như một cuộc phiêu lạc đầy thú vị khi bước vào xứ sở của Sứ Bia.

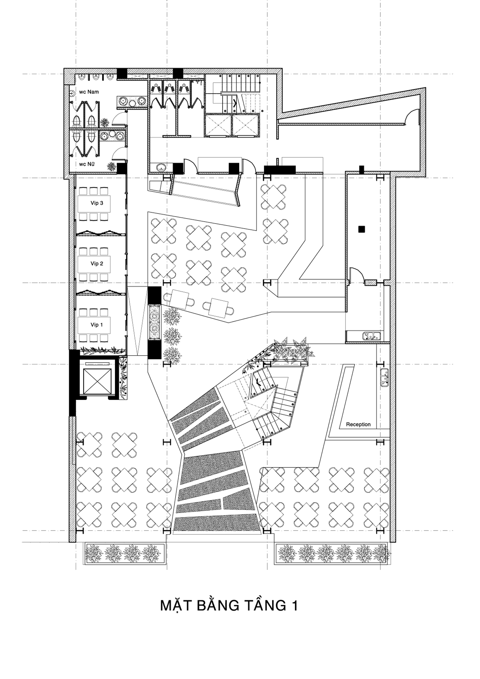
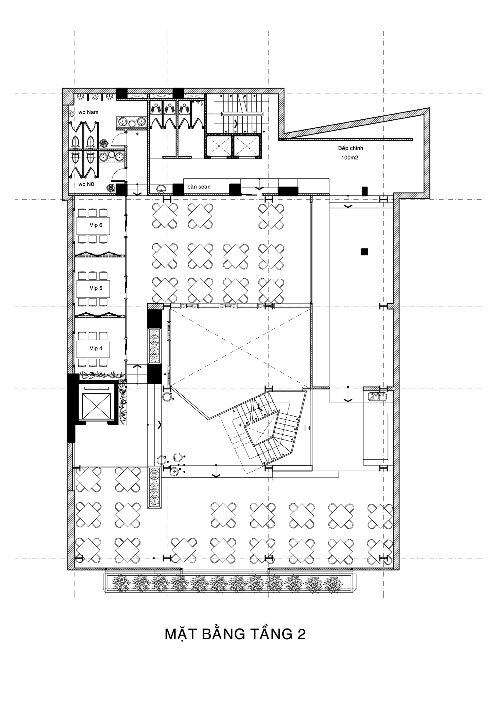
Nhà hàng Sứ Bia được xem như một công trình điểm nhấn với thể loại kiến trúc xanh có kết cấu khung thép tiền chế, kết hợp giữa bê tông vững chắc và vật liệu thô mộc của tự nhiên như cây cỏ dùng để trang trí mặt tiền, mang lại nét mới lạ, tạo cảm giác gần gũi với thiên nhiên. Với diện tích 1.800m2 cho kiến trúc ba tầng, mỗi tầng có chiều cao 7m2 thiết kế chung một kiểu cách, mang đậm không gian ba chiều tạo nên cảm giác thông thoáng và thênh thang kéo dài đến vô cùng. Đi sâu vào cấu trúc bên trong của công trình là những bậc thang quanh co, khúc khuỷu được tạo ra bằng gỗ và cốt thép cố định liên kết giữa các tầng với nhau. Để lên được các tầng trên, quý khách chỉ có một con đường duy nhất là bước trên “điểm giao thông đứng” đầy ấn tượng. Đây cũng được xem là điểm nhấn cho cả cấu trúc ba tầng của công trình. Bên cạnh tính sáng tạo và ấn tượng của kiến trúc, cách sắp xếp bàn ghế hài hòa cùng với phong cách phục vụ gần gũi mang lại cho thực khách cảm giác như đang ngồi trong khuôn viên nhà mình. Ngoài không gian chung thì mỗi tầng đều có khu vực phòng VIP thích hợp cho việc phục vụ thực khách với số lượng lớn như công ty hoặc đại gia đình trong những buổi họp mặt, liên hoan, tiệc tùng,…

Ngoài ra, tầng trên cùng có sân ngoài trời được phủ đầy bởi những cây Hoa Sứ như là một thương hiệu, một điểm nhấn hiện diện trong suốt kiến trúc công trình. Tầng sân thượng là một sự lựa chọn thi vị cho những ai mê thích sự yên tĩnh để hòa mình cùng với thiên nhiên rộng lớn. Thực khách vừa được hưởng thức ẩm thực tại Sứ Bia vừa được chiêm ngưỡng hương thơm tinh khiết cùng với vẻ ngoài trầm lặng mà những cây Hoa Sứ đem lại, và cả những thanh âm sắc thái đầy thơ mộng khác nữa! Công trình đã được hoàn thiện và đưa vào sử dụng đầu tháng 6 năm 2014. Nhà hàng Sứ Bia với kiến trúc xanh là một điểm nhấn ngay giữa lòng Hà Nội vừa cổ kính vừa hiện đại, với những mảng xanh dễ chịu tạo dấu ấn đặc biệt cho thực khách, mang đến một không gian thư thái sau những giờ làm việc đầy căng thẳng và mệt nhọc. Cũng chính vì lẽ đó mà ngay từ những ngày đầu khai trương, lượng khách đến Sứ Bia để uống bia rất lớn.

