Location: 90 Trần Thái Tông, Cầu Giấy, Hà Nội
Project year: 2018
Designed by: Le House
Area: 230m2
Photographs: Trieu Chien
Nhà cung ứng sản phẩm: M&A art tiles, Greenman Contractor, CAA décor, Betongtrangtri, Hải Long glass.

Cuốn N Roll là một nhà hàng chuyên về các món cuốn đặc trưng của Việt Nam. Với phương châm mang thực phẩm sạch “từ nông trại đến bàn ăn”, KTS Lê Hưng Trọng (Văn phòng Lê House) đã tái hiện một khu vườn Nắng Mai với màu sắc Xanh lá – Vàng – Trắng vào trong công trình. Những gam màu này được phối kết khéo léo mang lại cho thực khách cảm giác như đang đứng giữa thảm thực vật xanh tươi khoe sắc dưới những tia nắng vàng.
Trải nghiệm Cuốn N Roll – Khám phá sự thuần khiết
Giữa phố thị ồn ào, đầy ô nhiễm, khi thực phẩm bẩn ngày càng trở thành mối nguy hại cho sức khỏe con người, Cuốn N Roll ra đời không chỉ mang đến những món cuốn đặc trưng mà còn đề cao tính trải nghiệm khi thưởng thức ẩm thực trong không gian này.

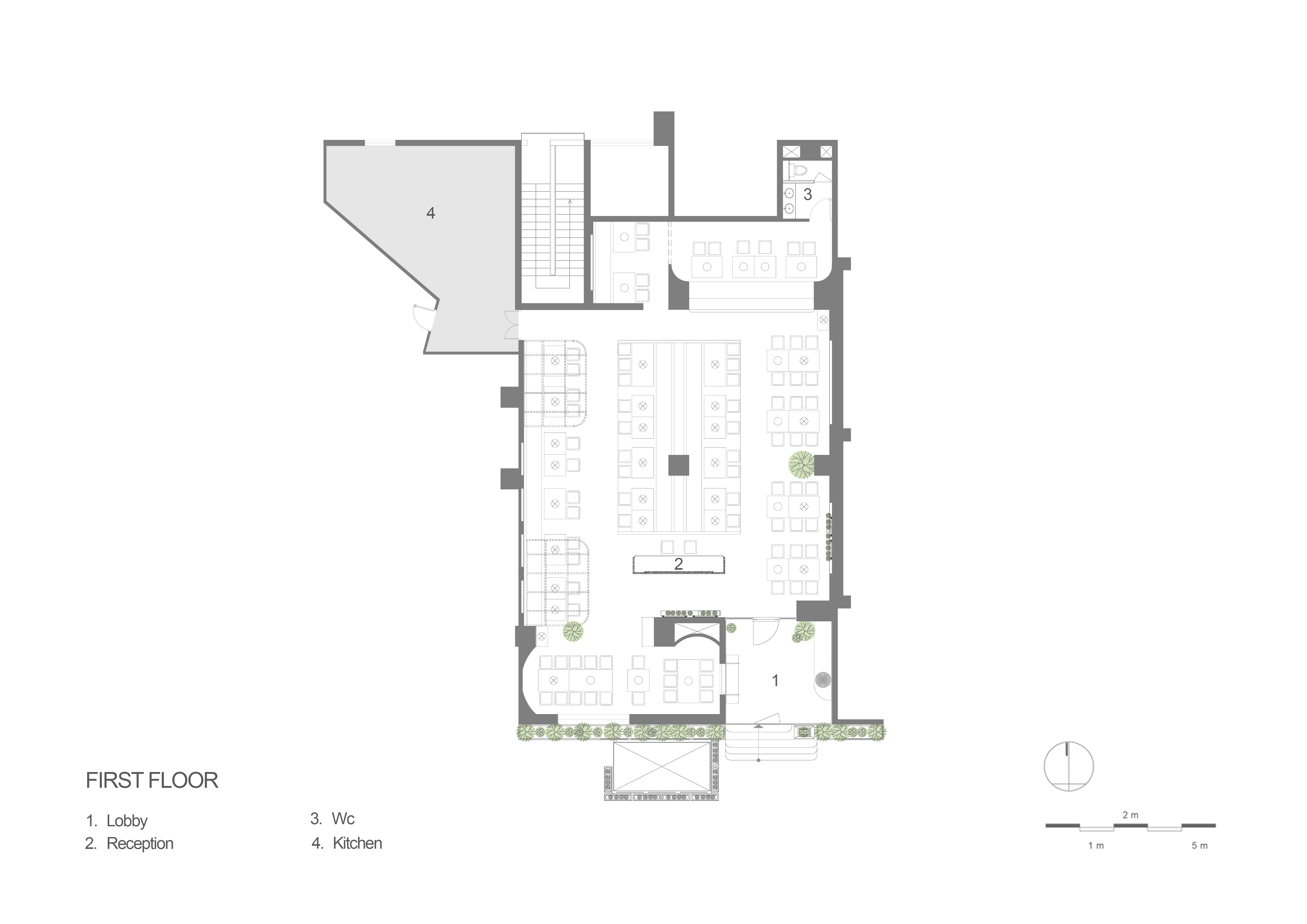
Sơ đồ bố trí không gian của Cuốn N Roll
Nằm trên con phố Trần Thái Tông với lưu lượng giao thông đông đúc, để thực khách khi bước vào không gian này như rũ bỏ mọi muộn phiền ngoài kia, Kiến trúc sư đã lùi lại một khoảng làm cánh cổng dẫn vào không gian ẩm thực. Điều đó cũng mang lại sự mong chờ, háo hức được khám phá không gian ẩm thực phía trong.

Cánh cửa dẫn vào Cuốn N Roll được làm tỉ mỉ từ hoa sắt trắng, cây xanh được trồng hai bên lối đi
Ngoài ngôn ngữ đường nét, yếu tố chủ đạo giúp công trình đạt được hiệu quả cao trong không gian chính là Màu sắc. Thể hiện phương châm thực phẩm sạch “từ nông trại đến bàn ăn”, sắc Xanh lá – Vàng – Trắng chính là những gam màu chủ đạo được phối kết hợp hài hòa, thể hiện tinh thần và ý tưởng thiết kế xuyên suốt của Kiến trúc sư. Màu Xanh lá được sử dụng cho sàn nhà kết hợp với màu Trắng mang đến sự tinh khiết, dễ chịu, màu Vàng của chi tiết điểm xuyết như những tia nắng vương qua khe cửa, qua kẽ lá mang đến nguồn năng lượng tích cực và sự ấn tượng. Tất cả được sắp xếp như vô tình nhưng lại có ý đồ và được kiến trúc sư tính toán tỉ mỉ để mang đến không gian trải nghiệm ẩm thực tuyệt vời, ghi dấu trong lòng mỗi thực khách ghé thăm.

Vượt qua giá trị của Ẩm thực
Bên cạnh màu sắc, những module Hoa Sắt trắng được phối ngẫu tạo thành hê vách phân chia không gian một cách tuyệt vời; riêng tư nhưng không quá biệt lập và tổng hòa với không gian chung. Những module này còn được sử dụng làm cổng, vừa vào hay những chi tiết trang trí để làm đẹp không gian.
Thời gian thi công công trình Cuốn N Roll vô cùng eo hẹp. Vì thế, kiến trúc sư đã sử dụng những chất liệu cơ bản và đơn giản, vô cùng dễ dàng cho việc tìm kiếm và thi công. Nhưng không phải vì thế mà bỏ qua những chi tiết đắt giá. Điển hình như quầy lễ tân được ghép tỉ mỉ từ những viên gạch gốm thủ công vẽ tay, tái hiện các chủng loại rau củ được trồng trong nông trại theo hình thức giả cổ.

Bản vẽ mặt bằng của Cuốn N Roll
Vượt qua không gian ẩm thực, Cuốn N Roll giống như một ngôi nhà vườn thu nhỏ, trong đó ẩn chứa biết bao điều thú vị từ thiên nhiên. Khi đến đây, thực khách có thể cảm nhận được sự tươi mới, mát lành từ không gian xanh, những ánh nắng mai vương trên khung cửa và từ những món ăn với nguyên liệu sạch, từ đó góp phần nâng cao sức khỏe Cộng đồng.