Location: 97 Triệu Việt Vương, Hà Nội, Việt Nam
Project Year: 2017
Area: 110.0 m2
Photographs: Hoàng Lê
Designed by: Le House

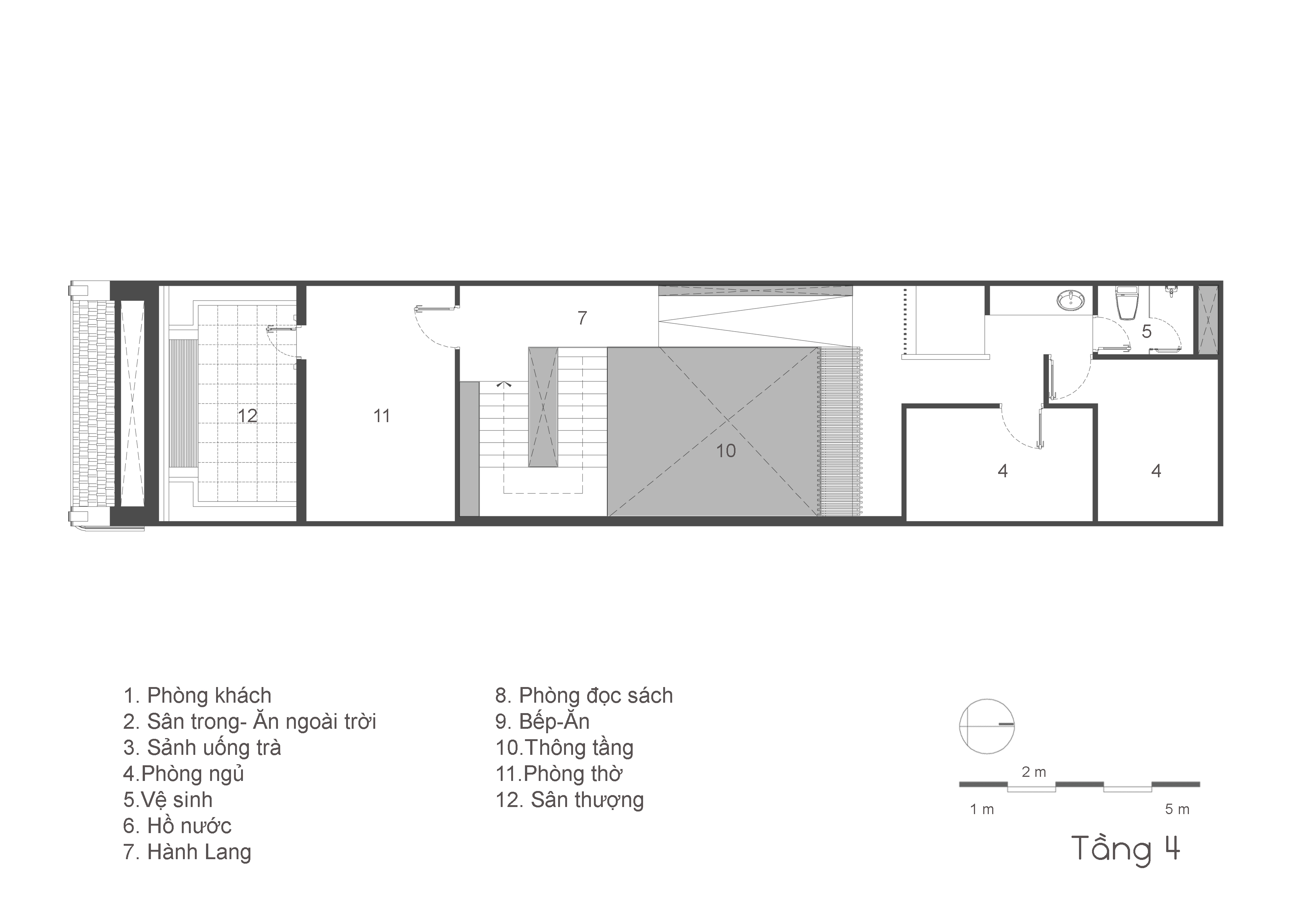
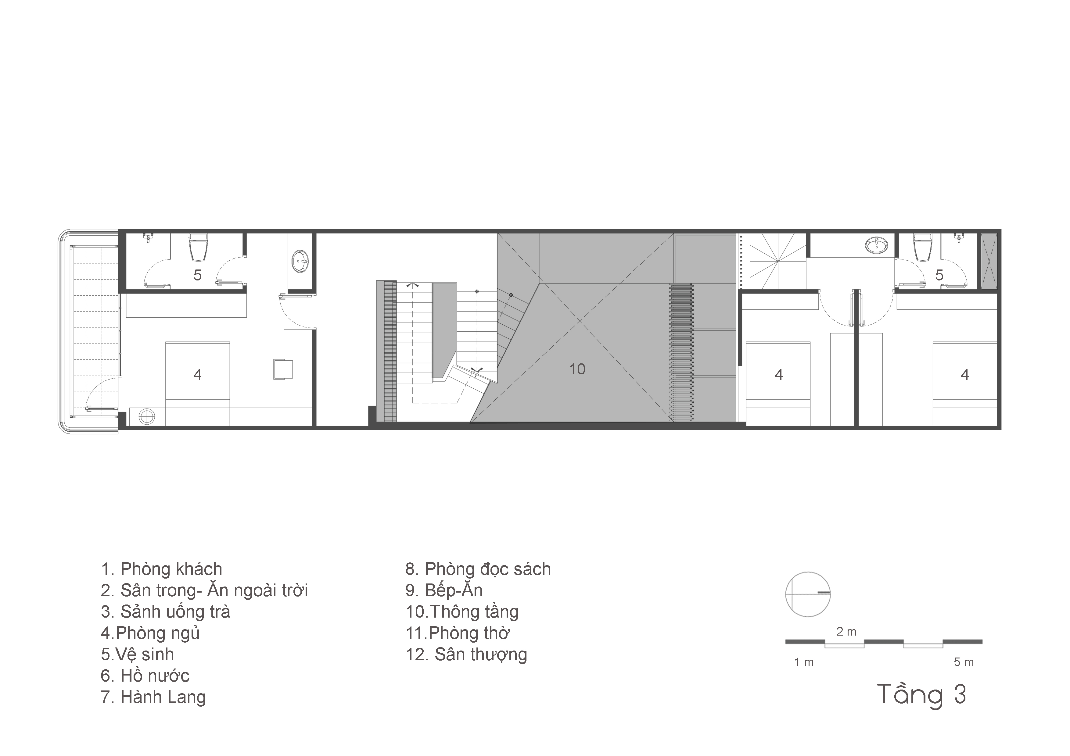
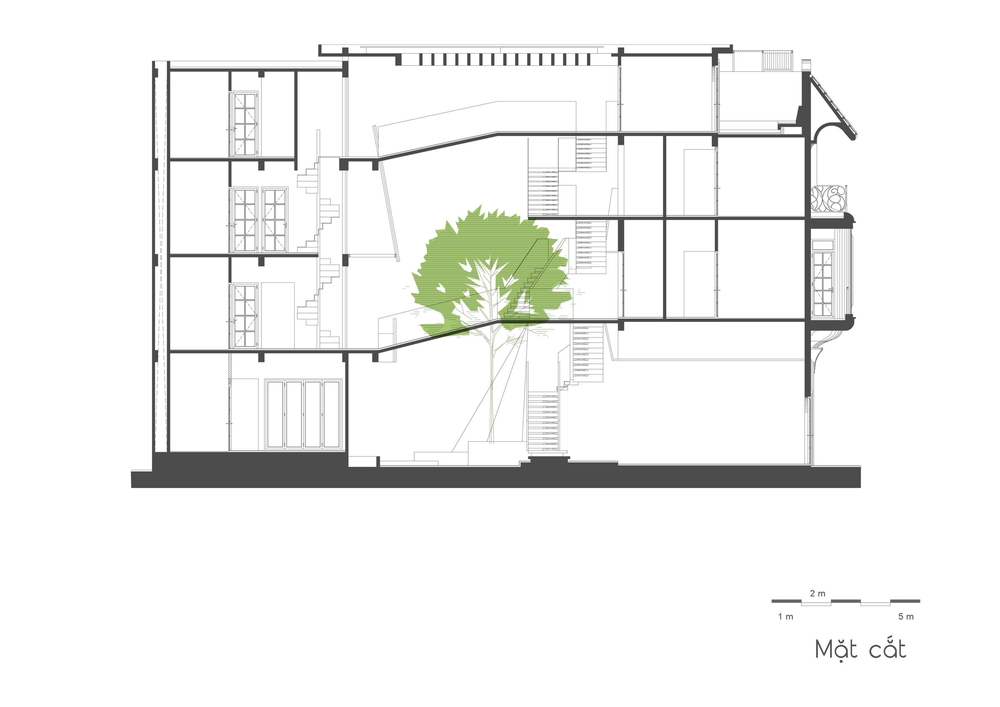
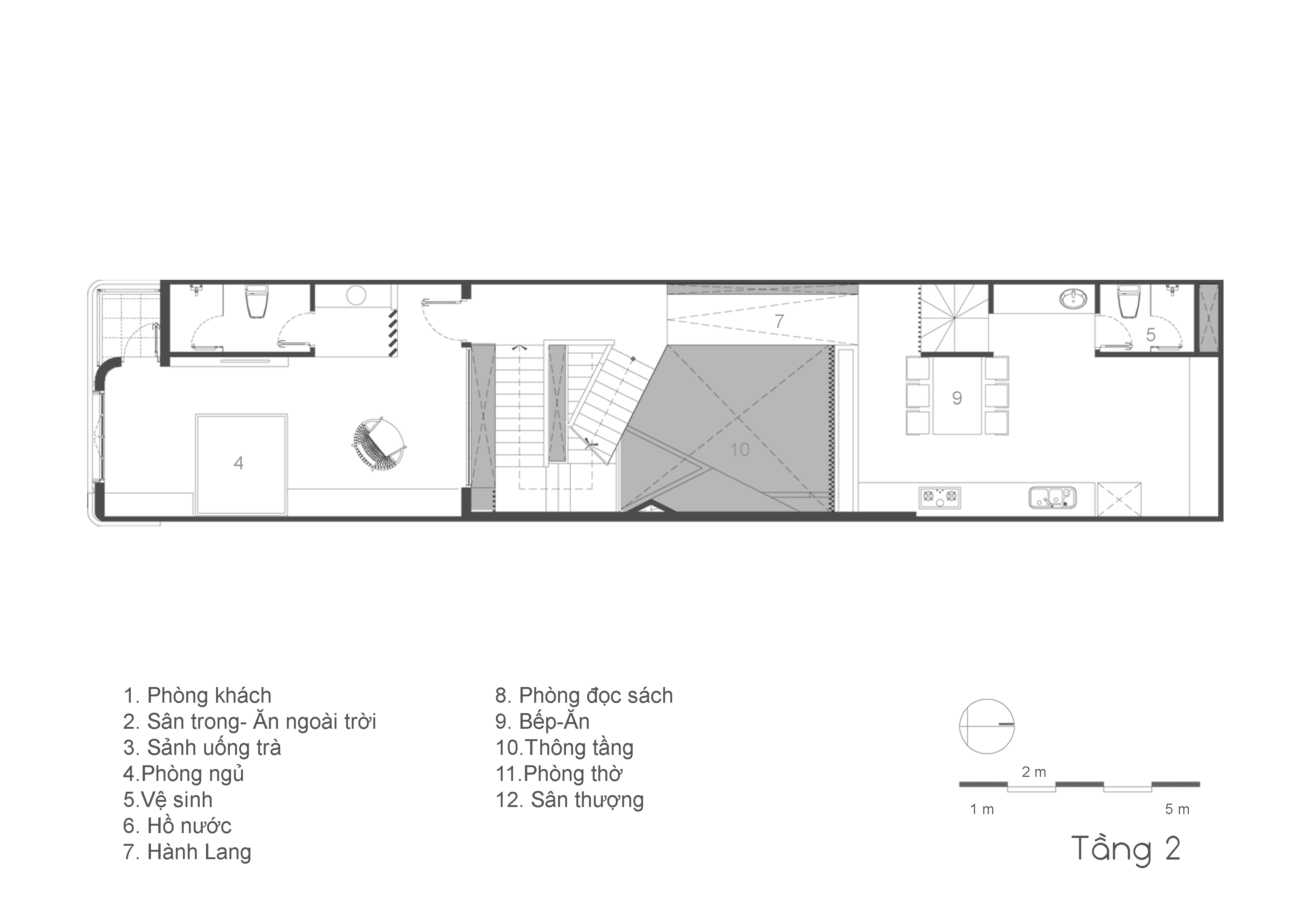
Công trình nằm trên khu phố vừa chút cổ của Hà Nội. Với chiều cao không quá nổi trội, có phần hơi khiêm tốn như muốn tái hiện lại 1 phần nào đó nếp sống và hình ảnh những ngôi nhà cổ nằm san sát nhau với mái ngói Nâu sầm trên nền tường Trắng muốt. Với triết lí "Wabisabi - vẻ đẹp của những điều không hoàn hảo và dở dang". Lê House muốn mang đến cho khách hàng một sự trải nghiệm đầy mới mẻ. Sự" Cũ Kĩ có tính toán sao cho vẫn là những hoài niệm xưa cũ nhưng vẫn hài hòa với nét hiện đại trong nhịp sống mới.
Vị khách Nữ có chia sẻ câu chuyện trước khi chúng tôi thiết kế rằng” Ngày xưa nhà chị chưa có điều kiện, mọi sinh hoạt ăn uống hay vui chôi đều dưới tán cây Bưởi, lí do vì sao là cây Bưởi mà không phải cây nào khác bưởi chị cứ nhớ mãi mùi hương của Hoa, gắn liền cả một thời kí ức trẻ con và đến khi chị trở thành một người phụ nữ của gia đình khi tuổi đời còn rất sớm 19 tuổi”. Trong nhịp sống tất nập co phần vật chất và tranh thủ “ tất đất tất vàng” của đất thủ đô, việc hy sinh để tạo một khoảng giếng trời thong tầng như thế này thì quả là không phải ai cũng có thể chấp nhận, ấy vậy mà vị khách không những đồng ý mà còn bị thuyết phục và hào hứng từ cái lần đầu tiên khi nó vẫn là phác thảo, chị nói chị thích vì nó như 1 phần của cái cũ, cái truyền thống mà chị đã trả qua.
Thật vậy, ngôi nhà của chúng ta trong thời buổi hiện tại nó không đơn thuần chỉ là chốn che mưa che gió mà nó phải là 1 phần kí ức, kỉ niệm đẹp của mỗi người, bởi chỉ có những điều đẹp đẽ ấy cho chúng ta được cảm thụ niềm hạnh phúc bình dị giữa chồn đời đầy nghiệt ngã này.
Mọi người có thể xem thêm về công trình Ha House trên các trang tạp chí kiến trúc:
- Kiến việc: https://kienviet.net/2017/05/25/ngoi-nha-ki-uc-giua-long-ha-noi-le-house/




